浜松の事務所や店舗など、事業所用物件探しは店舗市場
賃貸物件
For rent
売り物件
For sale
物件探し依頼
Request
開業Q&A
Q&A
オーナーの皆様へ
For owners
成約事例
Examples
お問合せ
Contact
完全
予約
営業時間 10:00~18:00(日曜定休)
合同会社楽毅
店舗市場 静岡県知事免許(3)13628号
〒430-0803
静岡県浜松市中央区植松町1476-11
[:ja]ホーム[:en]Home[:]
>
[:ja]お知らせ[:en]News[:]
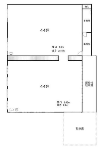
> 間取り図