
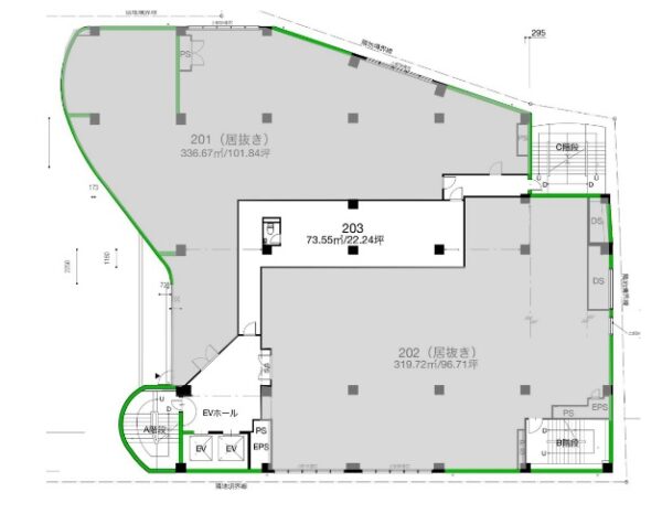
無料駐車場付き!船越町2階建て貸店舗・事務所
船越貸店舗
浜松市中央区船越町
店舗用物件

無料駐車場付き!船越町2階建て貸店舗・事務所
船越貸店舗
浜松市中央区船越町

飲食からパチンコ屋まで多用可!浜名区中瀬町貸店舗!
静岡県浜松市浜名区中瀬-

ラーメン激戦区!ラーメン店が一番のおススメ業態ですが、居酒屋なども可能な立地です
中華料理屋跡地
静岡県磐田市豊島-

通行客の集客が見込める1階店舗!美容・サロン・小規模飲食におすすめ!
チサンマンション104
静岡県浜松市中央区和地山

通行客の集客が見込める1階店舗!美容・サロン・小規模飲食におすすめ!
チサンマンション
静岡県浜松市中央区和地山

遠州病院駅から徒歩9分!車通りの多い好立地!清潔感のある綺麗な事務所物件!
リアライズ山下町 部屋番号:101
浜松市中央区山下町 ‐

開放感ある大きな窓と良好な日当たりの街中8階店舗・事務所物件!
第一ビルディング8階
静岡県浜松市中央区元城町 -

駅南好立地!業種制限ほぼなし!飲食・美容・スクール・小売りOK!業種制限ほぼなしテナント!
清川第6ビル
浜松市中央区砂山町 -

人通りの多い街中立地の5階!視認性良好スケルトン物件!
ピンストライプビル
浜松市中央区鍛冶町

カフェ、喫茶店、雑貨や小売店、宿泊施設にもOK!!多彩な用途に適応する古民家貸店舗。
三ヶ日町古民家貸店舗
静岡県浜松市中央区三ヶ日町宇志-