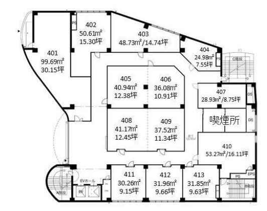
WAVE BLDGビル 406
フリーレント4か月
内見対応可能
| 賃料 | 25万円 消費税込み |
|---|---|
| 使用部分面積 | 36.08㎡ (10.91坪) |
敷金:6か月 礼金:なし |
|
静岡県浜松市中央区肴町322-20 |
|
建物名:WAVE BLDGビル |
|
取引形態:媒介 |
|
フリーレント4か月
内見対応可能












フリーレント4か月
内見対応可能
| 賃料 | 25万円 消費税込み |
|---|---|
| 使用部分面積 | 36.08㎡ (10.91坪) |
敷金:6か月 礼金:なし |
|
静岡県浜松市中央区肴町322-20 |
|
建物名:WAVE BLDGビル |
|
取引形態:媒介 |
|
フリーレント4か月
内見対応可能
