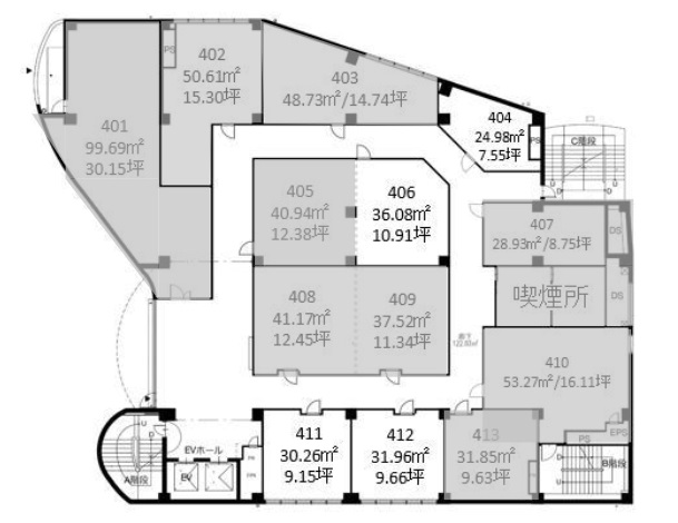
WAVE BLDGビル 411
AV2か月+フリーレント4か月
内見現地対応可の
| 賃料 | 146,000円 消費税込み |
|---|---|
| 使用部分面積 | 30.26㎡ (9.15坪) |
敷金:6か月 礼金:なし |
|
静岡県浜松市中央区肴町322-20 |
|
建物名:WAVE BLDGビル |
|
取引形態:媒介 |
|
AV2か月+フリーレント4か月
内見現地対応可の








AV2か月+フリーレント4か月
内見現地対応可の
| 賃料 | 146,000円 消費税込み |
|---|---|
| 使用部分面積 | 30.26㎡ (9.15坪) |
敷金:6か月 礼金:なし |
|
静岡県浜松市中央区肴町322-20 |
|
建物名:WAVE BLDGビル |
|
取引形態:媒介 |
|
AV2か月+フリーレント4か月
内見現地対応可の
