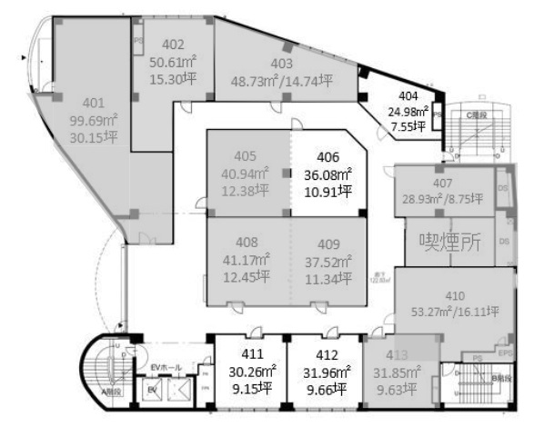
WAVE BLDGビル 412
AD2か月+フリーレント4か月
内見現地案内可能
スケルトン
| 賃料 | 144,000円 消費税込み |
|---|---|
| 使用部分面積 | 31.96㎡ (9.66坪) |
敷金:6か月 礼金:なし |
|
静岡県浜松市中央区肴町322-20 |
|
建物名:WAVE BLDGビル412 |
|
取引形態:媒介 |
|
AD2か月+フリーレント4か月
内見現地案内可能
スケルトン








AD2か月+フリーレント4か月
内見現地案内可能
スケルトン
| 賃料 | 144,000円 消費税込み |
|---|---|
| 使用部分面積 | 31.96㎡ (9.66坪) |
敷金:6か月 礼金:なし |
|
静岡県浜松市中央区肴町322-20 |
|
建物名:WAVE BLDGビル412 |
|
取引形態:媒介 |
|
AD2か月+フリーレント4か月
内見現地案内可能
スケルトン
