飲食からパチンコ屋まで多用可!浜名区中瀬町貸店舗!
元パチンコ店の広々とした店舗跡地です。
車でのアクセス良好。
重飲食、コンビニ、カフェなど幅広い業種でご検討いただけます。
駐車場スペースも充実しており、お客様の来店を想定した店舗づくりにも最適です◎
| 賃料 | 165万円 消費税込み |
|---|---|
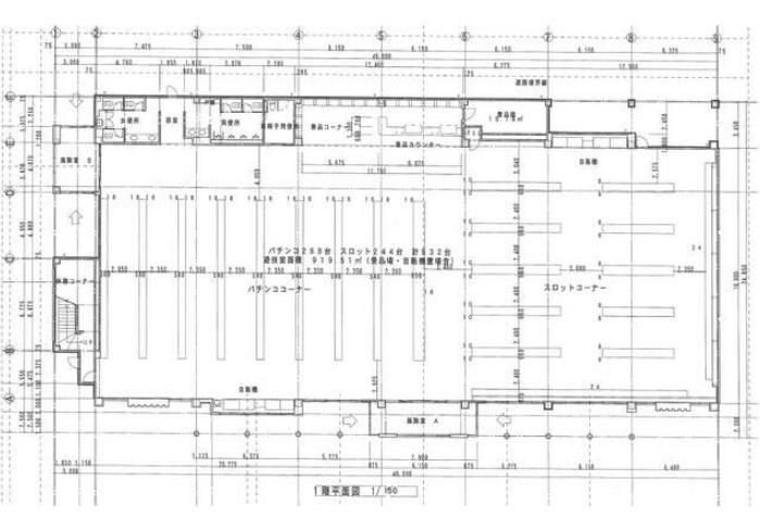
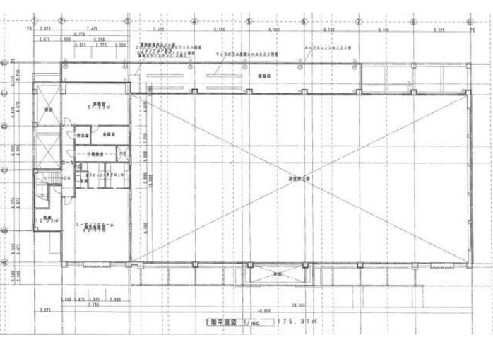
| 使用部分面積 | 1,229.22㎡ |
敷金:10ヶ月 礼金:2ヶ月 |
|
静岡県浜松市浜名区中瀬104-1 |
|
建物名: |
|
取引形態:媒介 |
|
建物東側駐車場別途8万円 (税込) |
元パチンコ店の広々とした店舗跡地です。
車でのアクセス良好。
重飲食、コンビニ、カフェなど幅広い業種でご検討いただけます。
駐車場スペースも充実しており、お客様の来店を想定した店舗づくりにも最適です◎
















