浜松の事務所や店舗など、事業所用物件探しは店舗市場

貸店舗WAVE BLDG

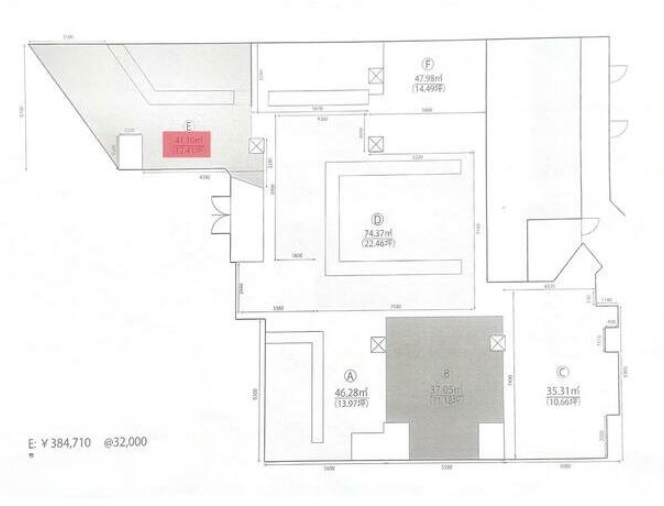
物件種別:貸店舗
物件番号:MM185

この物件について
メールで問合せる

物件種別:貸店舗物件番号:MM185

この物件についてメールで問合せる
賃料 384,710 消費税込み
使用部分面積41.10㎡
費用

敷金:6ヶ月   礼金:1ヶ月
共益費等:20,000円/月
管理費:なし
設備費:なし
駐車場:なし

所在地

浜松市中央区肴町 322

建物

建物名:WAVE BLDG(ウェーブビル) 部屋番号:E
築年月:1987年01月
構造:SRC
土地面積:

その他

取引形態:媒介
契約期間:5年
現況:空
引渡日:相談

備考

定額水道料:40,000円/月、 ゴミ処理代:8,000円/月
深夜営業可能 飲食店可 居抜き
【重飲食】 ラーメン・中華料理/焼肉・韓国料理/カレー・多国籍料理/和食・寿司/うどん・そば/焼き鳥/鉄板焼き・お好み焼き/洋食・レストラン/居酒屋・ダイニングバー/パン屋・ケーキ屋/テイクアウト・デリバリー
【軽飲食(喫茶店・カフェなど)】 カフェ・喫茶店
【その他飲食店】 その他飲食店

アクセス