JR浜松駅、新浜松駅至近の好立地ビル
駅前×好立地!約300㎡のゆとりのある空間で、事務所・店舗どちらも相談可能。
人通り・車通りのある通りに面しており、集客・視認性◎
業種幅広くご相談ください!
| 賃料 | 143万円 消費税込み |
|---|---|
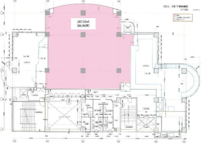
| 使用部分面積 | 287.50㎡ |
敷金:12ヶ月 礼金:なし |
|
浜松市中央区銀治町140 |
|
建物名:浜松Cビル |
|
取引形態:媒介 |
|
ビルトインエアコン 個別空調 インターネット対応 火災警報器(報知機) 有人警備 24時間セキュリティー エレベーター エレベーター2基以上 人荷用エレベーター 施設内喫煙所 車寄せスペース |
駅前×好立地!約300㎡のゆとりのある空間で、事務所・店舗どちらも相談可能。
人通り・車通りのある通りに面しており、集客・視認性◎
業種幅広くご相談ください!






