ラーメン激戦区!ラーメン店が一番のおススメ業態ですが、居酒屋なども可能な立地です
現在設備屋さんの事務所兼倉庫で賃貸中です。高利回りでおすすめです
| 販売価格 | 3,600万円 |
|---|
静岡県磐田市豊島町1305-1 |
|
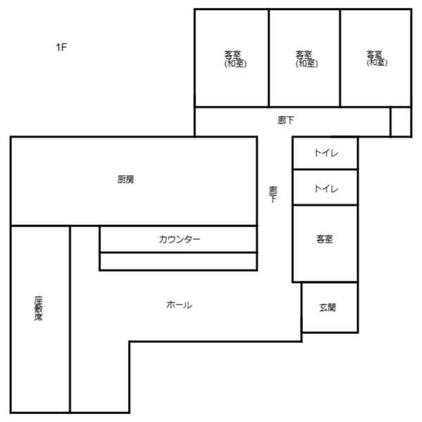
建物名:中華料理屋跡地 |
|
土地面積:公簿 910.30㎡ (275.36坪) |
|
取引形態:媒介 |
|
現在設備屋さんの事務所兼倉庫で賃貸中です。高利回りでおすすめです














現在設備屋さんの事務所兼倉庫で賃貸中です。高利回りでおすすめです
| 販売価格 | 3,600万円 |
|---|
静岡県磐田市豊島町1305-1 |
|
建物名:中華料理屋跡地 |
|
土地面積:公簿 910.30㎡ (275.36坪) |
|
取引形態:媒介 |
|
現在設備屋さんの事務所兼倉庫で賃貸中です。高利回りでおすすめです
